En Venta

Consultar Precio

Casa
VIDA CLUB DE CAMPO Barrio Privado - Funes
Código: 211228

Av. Arturo Illia 158, S2132 Funes, Santa Fe, Argentina, Funes, Santa Fe, Argentina.

Compartir esta Propiedad

Descripción de la Propiedad

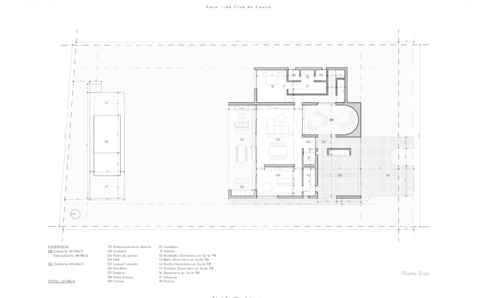
Casa desarrollada en dos plantas, con espacios amplios, muy buena luz natural y una fuerte conexión con el jardín.

En planta baja, el living-comedor se integra con la cocina equipada con isla, generando un espacio moderno y funcional. Desde aquí se accede a la galería con parrillero, ideal para reuniones, y al jardín con piscina y solárium.

La suite principal se encuentra en planta baja, con vestidor y baño completo. Además, cuenta con toilette de recepción y lavadero independiente con acceso secundario.

En planta alta se desarrollan dos dormitorios amplios y un baño completo.

La propiedad se completa con cochera semicubierta para dos autos e ingreso peatonal independiente.

Características:
.3 dormitorios (1 en suite)
.2 baños completos + toilette
.Cocina con isla
.Galería con parrillero
.Piscina y solárium
.Cochera para 2 autos

Superficie:
.Cubierta: 222,60 m²
.Semicubierta: 89,18 m²
.Total: 311,78 m²

Valor: Consultar

Mas detalles
  • Acepta mascotas
  • Pileta
  • Gimnasio
  • En construcción
  • Calefacción
  • Parrilla
  • Seguridad 24hs.
  • Luminoso
  • Quincho
  • Comedor
  • Solarium
  • Cochera
  • Cerca de Escuelas
  • Asfalto
  • Agua Corriente
  • Cloacas
  • Electricidad
  • Red Gas Natural
  • Entrada para Auto
  • Barrio cerrado
  • Garita de seguridad
  • Galería techada
Ubicación